UFFICIO DISPONIBILE SUBITO

In vendita
Ufficio
Carpi
350.000 €
Descrizione
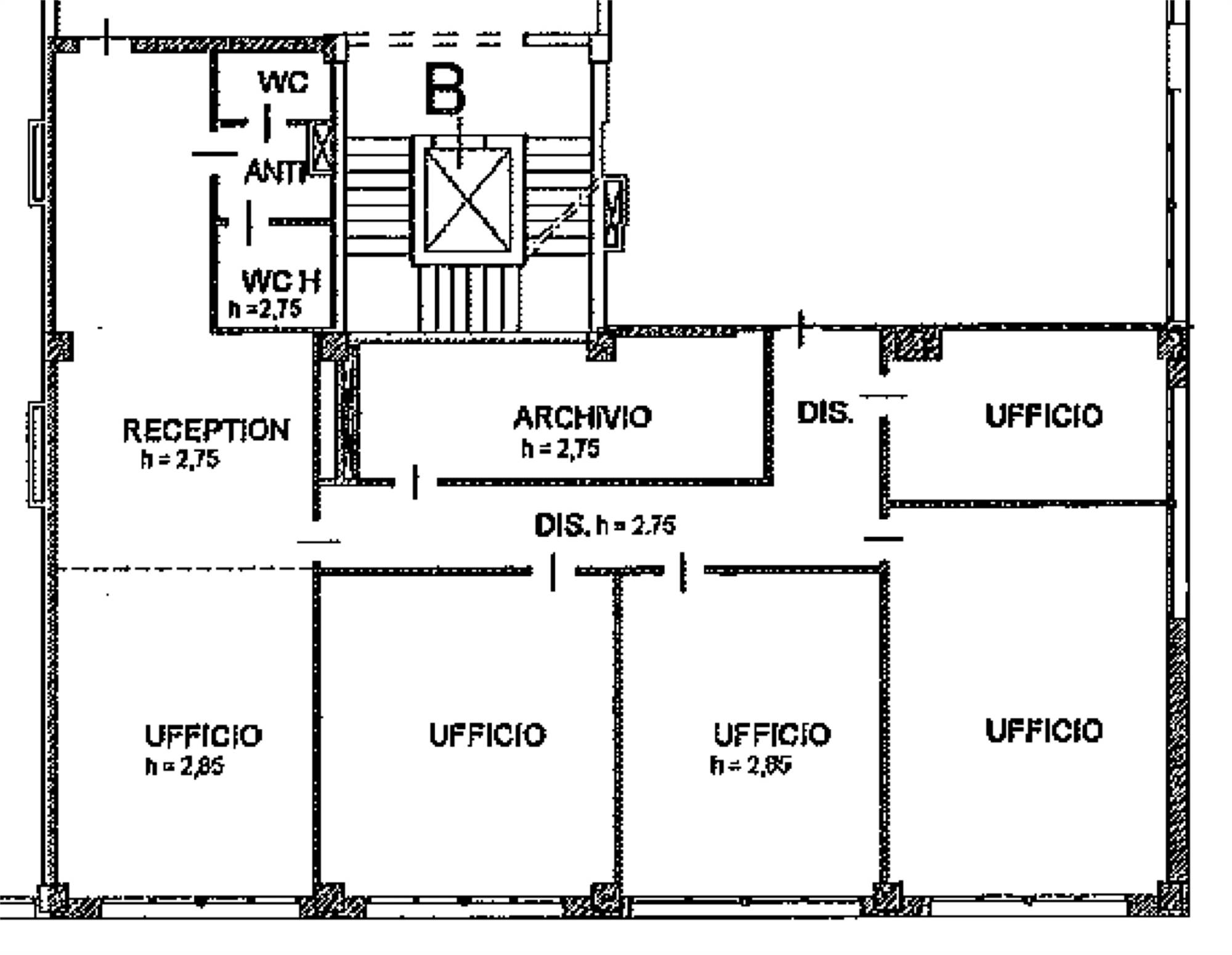
CARPI - A pochi minuti dall'uscita del casello di Carpi, sull' Autostrada A22 (Brennero-Modena), proponiamo luminoso e ampio ufficio, situato al primo piano di un edificio moderno dotato di ascensore, perfetto per chi cerca un ambiente di lavoro funzionale e ben organizzato. È composto da cinque locali uffici, una zona reception accogliente, un archivio, disimpegno, antibagno e due servizi. L'ufficio è ben tenuto e curato, con una parte di arredi e di impiantistica già presente, che permette di facilitare un insediamento immediato; grazie alla sua esposizione a est sud ovest, l'ufficio gode di un'ottima illuminazione naturale durante tutto il giorno. Inoltre, la vendita include cinque posti auto, al piano interrato comodamente servito da ascensore, offrendo così comodità e sicurezza per te e i tuoi collaboratori. L'edificio si presenta in ottime condizioni ed è parte di un complesso di quattro piani, ideale per chi desidera un ambiente professionale in una posizione strategica attrattiva, in zona ben servita di parcheggio.
Un’ opportunità ideale per professionisti e aziende che desiderano investire in uno spazio di rappresentanza, pronto all’uso e dal grande potenziale e questo ufficio rappresenta una soluzione di prestigio con ottima visibilità e accessibilità.
Caratteristiche principali
Codice:
UC 01
Città:
Carpi
Categoria:
Ufficio
Locali:
5
Bagni:
2
Mq:
280
Posti auto:
5
Piano:
1
Anno:
2000
Classe energetica:
In fase di valutazione
Stato Immobile:
Buono
Orientamento:
Est Sud Ovest
Riscaldamento:
Autonomo
Infissi:
Metallo Doppio Vetro
Accessori
Ascensore
Mappa
delle Trecciaiole, 0 - Carpi (MO)
Cookie preference